SISÄPUHALTIMEN / ILMASTOINNIN ONGELMA W211 -07 "Facelif
Valvoja: Kaapo
SISÄPUHALTIMEN / ILMASTOINNIN ONGELMA W211 -07 "Facelif
Tämmöiseen kinkkiseen sisäpuhallin/ilmastointivikaan tarvitsisin apua.
Kyseessä siis w211, -07 "Facelift" Sedan, E200 CDI Elegance. Vajaa 600 000km mittarissa.
Ilmastointi/sisäpuhallin puhaltelee omiaan. Välillä ulkokelistä ja sisäilman lämpötilasta riippumatta puhaltaa kuumaa, kunnes "herää" ja alkaa puhaltamaan hetken viileää. Puhaltaa välillä ilmastoinnin ollessa päällä ihan kylmääkin. Välillä on joitakin päiviä, jopa pari viikkoa, että toimii "normaalisti" eli puhaltaa tasaisesti pitäen halutun lämpötilan ja reagoi puhallusnopeuden sätöön. Tuolloin olen pitänyt manuaalisesti asetetulla puhallinnopeudella ja olemaan koskematta säätimiin, jotta pysyisi mahdollisimman pitkään siedettävänä. Joskus sitten ei ole lähtenyt sisäpuhallin pyörimään ollenkaan.
Kun ns. puhaltelee omiaan eikä käyttäydy normaalisti (tällöin ei myöskään tottele ilmastoinnin säätimiä), jää myös sisäpuhallin päälle vaikka avain on taskussa. Tuolloin puhallus kuitenkin loppuu muutaman minuutin jälkeen. Tuolloin kuulee myös kuinka aukoo läppiä sieltä täältä miten sattuu.
Vikakoodit:
-9001 Ilmastoinnin väylän yhteysvika puhaltimen säätimen kanssa
-9388 Ilmastoinnin väylän yhteysvika raitisilma/kiertoilmaläpät kanssa
-9370 Ilmastoinnin väylän yhteysvika automaattinen lisälämmittimen kanssa
-9398 Ilmastoinnin väylän yhteysvika säätömoottori huurteenpoistoläpät kanssa
-93a8 Ilmastoinnin väylän yhteysvika jalkaläpät kanssa
-93c8 Ilmastoinnin väylän yhteysvika sekoitusläppä vasen kanssa
-93d0 Ilmastoinnin väylän yhteysvika sekoitusläppä oikea kanssa
-93d8 Ilmastoinnin väylän yhteysvika keskisuuttimen läppä kanssa
-9470 automaattinen lisälämmitin sähköinen vika
Ylläolevat poistettaessa viat tulevat saman tien takaisin.
On koitettu lämppärin etuvastusta. Tuolloin myös tuolla alueella olevat liittimet tarkistettu hapettumisen varalta.
Vaikuttaako lämmönsäätöpaneelin vialta?
Kyseessä siis w211, -07 "Facelift" Sedan, E200 CDI Elegance. Vajaa 600 000km mittarissa.
Ilmastointi/sisäpuhallin puhaltelee omiaan. Välillä ulkokelistä ja sisäilman lämpötilasta riippumatta puhaltaa kuumaa, kunnes "herää" ja alkaa puhaltamaan hetken viileää. Puhaltaa välillä ilmastoinnin ollessa päällä ihan kylmääkin. Välillä on joitakin päiviä, jopa pari viikkoa, että toimii "normaalisti" eli puhaltaa tasaisesti pitäen halutun lämpötilan ja reagoi puhallusnopeuden sätöön. Tuolloin olen pitänyt manuaalisesti asetetulla puhallinnopeudella ja olemaan koskematta säätimiin, jotta pysyisi mahdollisimman pitkään siedettävänä. Joskus sitten ei ole lähtenyt sisäpuhallin pyörimään ollenkaan.
Kun ns. puhaltelee omiaan eikä käyttäydy normaalisti (tällöin ei myöskään tottele ilmastoinnin säätimiä), jää myös sisäpuhallin päälle vaikka avain on taskussa. Tuolloin puhallus kuitenkin loppuu muutaman minuutin jälkeen. Tuolloin kuulee myös kuinka aukoo läppiä sieltä täältä miten sattuu.
Vikakoodit:
-9001 Ilmastoinnin väylän yhteysvika puhaltimen säätimen kanssa
-9388 Ilmastoinnin väylän yhteysvika raitisilma/kiertoilmaläpät kanssa
-9370 Ilmastoinnin väylän yhteysvika automaattinen lisälämmittimen kanssa
-9398 Ilmastoinnin väylän yhteysvika säätömoottori huurteenpoistoläpät kanssa
-93a8 Ilmastoinnin väylän yhteysvika jalkaläpät kanssa
-93c8 Ilmastoinnin väylän yhteysvika sekoitusläppä vasen kanssa
-93d0 Ilmastoinnin väylän yhteysvika sekoitusläppä oikea kanssa
-93d8 Ilmastoinnin väylän yhteysvika keskisuuttimen läppä kanssa
-9470 automaattinen lisälämmitin sähköinen vika
Ylläolevat poistettaessa viat tulevat saman tien takaisin.
On koitettu lämppärin etuvastusta. Tuolloin myös tuolla alueella olevat liittimet tarkistettu hapettumisen varalta.
Vaikuttaako lämmönsäätöpaneelin vialta?
Viimeksi muokannut Mixu8, 04.5.2020 14:02. Yhteensä muokattu 1 kertaa.
Tere.
Omassa W211 -04, sekoilee samoin.
Ilmaantuu vain keväisin ja syksyisin...
Fiilispohjalta tuntuu, että, kun saavuttaa tavoitelämpötilan, ei enää tajua mitä tehdä seuraavaksi ja sekoaa.
Talvella tarvii aina lämpöistä = ei ongelmaa.
Kesällä kylmää = ei ongelmaa.
Säätömoottoreiden normitus ei mene *illa läpi, mutta päivästä riippuen, näyttää puolenkymmentä moottoria rikkinäiseksi, tai vastaavasti kaikkien olevan kunnossa.
Paneelin vaihdon jälkeen ei sentään ole jäänyt puhaltelemaan itsekseen, vaikka avaimet otti taskuun.
Omassa W211 -04, sekoilee samoin.
Ilmaantuu vain keväisin ja syksyisin...
Fiilispohjalta tuntuu, että, kun saavuttaa tavoitelämpötilan, ei enää tajua mitä tehdä seuraavaksi ja sekoaa.
Talvella tarvii aina lämpöistä = ei ongelmaa.
Kesällä kylmää = ei ongelmaa.
Säätömoottoreiden normitus ei mene *illa läpi, mutta päivästä riippuen, näyttää puolenkymmentä moottoria rikkinäiseksi, tai vastaavasti kaikkien olevan kunnossa.
Paneelin vaihdon jälkeen ei sentään ole jäänyt puhaltelemaan itsekseen, vaikka avaimet otti taskuun.
Nonniin...
Olemassa nyt ja tallennettu:
9101 Lämmityksen...CAN-väylän tiedonsiirtovika
9310 Ilmastoinnin väylän yhteysvika rakenneosan S81 kanssa
9340 Ilmastoinnin väylän yhteysvika rakenneosan B32/2 (aurinkotunnistin) kanssa
9350 Ilmastoinnin väylän yhteysvika rakenneosan B31 (monitoimitunnistin K-KLA) kanssa
Olemassa nyt ja tallennettu:
9101 Lämmityksen...CAN-väylän tiedonsiirtovika
9310 Ilmastoinnin väylän yhteysvika rakenneosan S81 kanssa
9340 Ilmastoinnin väylän yhteysvika rakenneosan B32/2 (aurinkotunnistin) kanssa
9350 Ilmastoinnin väylän yhteysvika rakenneosan B31 (monitoimitunnistin K-KLA) kanssa
Re: SISÄPUHALTIMEN / ILMASTOINNIN ONGELMA W211 -07 "Facelif
Heippa
Täällä lähes samat koodit ja oireet myös samat kuin Mixu8:lla. Kaikki koodit tulevat heti takaisin sitten kun vika käy päällä.
Yleensä ilmastointi pysähtyy kesken ajon mutta paneelissa kaikki näyttää normaalilta. Aakaa toimimaan hetken kuluttua normaalisti, tosin ensin tulee kuumaa ilma ja sitten palautuu viilennys takaisin kun menee noin 5-10 sekuntia. Oliskohan vesiventiili jumissa? Kerran tosin lähti toimimaan koputtelemalla puhaltimen ympäristöä, mutta saattoi olla vain sattumaa sillä se temppu ei ollut toistettavissa ja puhallin kyllä pyörii edelleen hyvin eikä ääntele edes pakkasella kovin pahasti. Voisiko vesiventtiilin moottori olla osittain ruostunu jumiin ja kuluttaa sen takia paljon virtaa ja häiritsee CAN / LIN väylien toimintaa
Vikakoodit:
-9001 Ilmastoinnin väylän yhteysvika puhaltimen säätimen kanssa
-9388 Ilmastoinnin väylän yhteysvika raitisilma/kiertoilmaläpät kanssa
-9370 Ilmastoinnin väylän yhteysvika automaattinen lisälämmittimen kanssa
-9398 Ilmastoinnin väylän yhteysvika säätömoottori huurteenpoistoläpät kanssa
-93a8 Ilmastoinnin väylän yhteysvika jalkaläpät kanssa
-93c8 Ilmastoinnin väylän yhteysvika sekoitusläppä vasen kanssa
-93d0 Ilmastoinnin väylän yhteysvika sekoitusläppä oikea kanssa
-93d8 Ilmastoinnin väylän yhteysvika keskisuuttimen läppä kanssa
-9465 A32n1 (puhaltimen säädin ) / Ylikuormitus-poiskytkentä, Jos asiakasvalitusta ei ole voi vian nollata (Tämä koodi poikkeaa mulla Mixu8:n viasta), mutta minulla ei ole automaattista lisälämmitintä eli Webastoa, tai siis onhan mulla Webasto mutta Mersu vaan ei tiedä siitä mitään.
Testailin Starilla läpi puhaltimen ja kaikki läppämoottorit. Vika ei tullut testien aikana esiin vaan vasta kun kävin koeajolla. Viilennys kompura lähtee toimimaan ja tuottaa hyvin kylmää. Senhän minä vaihdoin tuohon 3 vuotta sitten.
Kyseessa S-211 280CDI vm -06 Facelift 813.000km
Täällä lähes samat koodit ja oireet myös samat kuin Mixu8:lla. Kaikki koodit tulevat heti takaisin sitten kun vika käy päällä.
Yleensä ilmastointi pysähtyy kesken ajon mutta paneelissa kaikki näyttää normaalilta. Aakaa toimimaan hetken kuluttua normaalisti, tosin ensin tulee kuumaa ilma ja sitten palautuu viilennys takaisin kun menee noin 5-10 sekuntia. Oliskohan vesiventiili jumissa? Kerran tosin lähti toimimaan koputtelemalla puhaltimen ympäristöä, mutta saattoi olla vain sattumaa sillä se temppu ei ollut toistettavissa ja puhallin kyllä pyörii edelleen hyvin eikä ääntele edes pakkasella kovin pahasti. Voisiko vesiventtiilin moottori olla osittain ruostunu jumiin ja kuluttaa sen takia paljon virtaa ja häiritsee CAN / LIN väylien toimintaa
Vikakoodit:
-9001 Ilmastoinnin väylän yhteysvika puhaltimen säätimen kanssa
-9388 Ilmastoinnin väylän yhteysvika raitisilma/kiertoilmaläpät kanssa
-9370 Ilmastoinnin väylän yhteysvika automaattinen lisälämmittimen kanssa
-9398 Ilmastoinnin väylän yhteysvika säätömoottori huurteenpoistoläpät kanssa
-93a8 Ilmastoinnin väylän yhteysvika jalkaläpät kanssa
-93c8 Ilmastoinnin väylän yhteysvika sekoitusläppä vasen kanssa
-93d0 Ilmastoinnin väylän yhteysvika sekoitusläppä oikea kanssa
-93d8 Ilmastoinnin väylän yhteysvika keskisuuttimen läppä kanssa
-9465 A32n1 (puhaltimen säädin ) / Ylikuormitus-poiskytkentä, Jos asiakasvalitusta ei ole voi vian nollata (Tämä koodi poikkeaa mulla Mixu8:n viasta), mutta minulla ei ole automaattista lisälämmitintä eli Webastoa, tai siis onhan mulla Webasto mutta Mersu vaan ei tiedä siitä mitään.
Testailin Starilla läpi puhaltimen ja kaikki läppämoottorit. Vika ei tullut testien aikana esiin vaan vasta kun kävin koeajolla. Viilennys kompura lähtee toimimaan ja tuottaa hyvin kylmää. Senhän minä vaihdoin tuohon 3 vuotta sitten.
Kyseessa S-211 280CDI vm -06 Facelift 813.000km
Escort MK1 -71
Escort MK2 -75
Passat Farm -81
MB300D Farm -88
MB E280CDI Farm -06
Escort MK2 -75
Passat Farm -81
MB300D Farm -88
MB E280CDI Farm -06
Re: SISÄPUHALTIMEN / ILMASTOINNIN ONGELMA W211 -07 "Facelif
Tuliko tähän mitään selkoa?
Omassa autossa ihan samat oireet. Vaihdettu on puhallinta, etuvastusta, käyttöpaneelia...mikään ei auta. Siinä nollan asteen molemmin puolin alkaa toimimattomuus. En tiedä onko enää kelilläkään väliä. Vika tuntuu pahenevan.
Omassa autossa ihan samat oireet. Vaihdettu on puhallinta, etuvastusta, käyttöpaneelia...mikään ei auta. Siinä nollan asteen molemmin puolin alkaa toimimattomuus. En tiedä onko enää kelilläkään väliä. Vika tuntuu pahenevan.
W211 220cdi T-model vm. 2007
Re: SISÄPUHALTIMEN / ILMASTOINNIN ONGELMA W211 -07 "Facelif
Tasan sama homma täälläkin (mb e 220t cdi -08, 430tkm) ja puhallin sekä etuvastus vaihettu "motonetin uusiin". Pakkasilla pelitti ongelmitta, toisinaan saatto muutamaks sekunniks sammua. Nyt nollakelien aikaan yhtä sekoilua.
LR Defender 110 STW -06
LR Series 3 109" STW -79
RR Classic 3ov 200tdi -76
Mercedes E220T CDI -08
Mercedes E290 tdt -97 "new" lintta
ex MB E200d -94
ex MB E300tdt -98
LR Series 3 109" STW -79
RR Classic 3ov 200tdi -76
Mercedes E220T CDI -08
Mercedes E290 tdt -97 "new" lintta
ex MB E200d -94
ex MB E300tdt -98
Re: SISÄPUHALTIMEN / ILMASTOINNIN ONGELMA W211 -07 "Facelif
Sulakeboksit tarkastelin, CAN-väyläriman kontakteja (oikea jalkatila) sprayllä varmistelin ja kaikkea olen kokeillut, mitä nyt vaan on mieleen tullut. Millään ei tunnu olevan vaikutusta.
Omassa autossa pätkiminen alkaa melko pian liikkeelle lähdön jälkeen. Kun ajaa pitempää matkaa ja kaikki on lämmennyt niin vika ei välttämättä toistu. Tältä ainakin nyt tuntuu. Onko moottoritilassa jotain, mikä tähän ilmastoinnin pätkimiseen vaikuttaa?
Luulisi, että joku on tämän ongelman selvittänyt, tai jos joku selvittää, niin jakaa oman ratkaisunsa.
Omassa autossa pätkiminen alkaa melko pian liikkeelle lähdön jälkeen. Kun ajaa pitempää matkaa ja kaikki on lämmennyt niin vika ei välttämättä toistu. Tältä ainakin nyt tuntuu. Onko moottoritilassa jotain, mikä tähän ilmastoinnin pätkimiseen vaikuttaa?
Luulisi, että joku on tämän ongelman selvittänyt, tai jos joku selvittää, niin jakaa oman ratkaisunsa.
W211 220cdi T-model vm. 2007
Re: SISÄPUHALTIMEN / ILMASTOINNIN ONGELMA W211 -07 "Facelif
Mitä vikakoodia järjestelmästä löytyy ?
wiimax.fi
Re: SISÄPUHALTIMEN / ILMASTOINNIN ONGELMA W211 -07 "Facelif
*:lla ei löytyneitä en ulkoa muista, mutta samansuuntaisia ovat sillä, kuin omalla autel-merkkisellä. *:lla pääsisi vain testailemaan paremmin mikä oikeasti toimii ja millä arvoilla.
Kaikki vikakoodit tulevat Automaattisen ilmastoinnin puolelta
- PTC Heater Booster
- communication fault of A/c -bus (stepping motors positive temperature coefficient)
- communication fault of A/c -bus, component R22/3 Heater Booster
- R22/3, electrical fault, Heater Booster (status, current), Tämä vika on ollut jo vuosia ennen kuin ilmastointi temppuili
*:lla esilämmitin kuitenkin lähti käyntiin. Näin ainakin kuviteltiin. Ampeereja otti ja auton tyhjäkäynnistä huomasi aina kun lämmittimen laittoi päälle.
Tietokatkos tulee myös seuraavista ja ilmenee silloin kun ilmastointi sammuu ja oikkuilee (koodit tallentuvat):
Communication fault of A/C -bus
- component A32n1(Blower regulator)
- component M2/5 (left and right defrost flap actuator motor)
- component M2/16 (left and right defroster flaps actuator)
- component M2/15 (left and right footwell flaps actuator)
- component M2/6 (left blend air flap actuator)
- component M2/5 (fresh and recirculated air flap actuator motor)
- component M2/7 (right blend air flap actuator)
- component M2/22 (center vent flap positioning motor)
Eli yksi sähkövika esivastuksesta on olemassa joka tapauksessa. Oikkuilee ilmastointi tai ei. Kaikki muut viat ovat tiedonkulkukatkoksia A/C väylässä. Nämä ilmestyvät jokaisella kerralla uudestaan kun puhallin sammuu. Puhallinmoottori antoi vian ollessa päällä "invalid values" -koodia. Tämän takia vaihdoin sen uuteen - ei auttanut.
Enää ei tule muuta mieleen kuin etu-SAM...
Kaikki vikakoodit tulevat Automaattisen ilmastoinnin puolelta
- PTC Heater Booster
- communication fault of A/c -bus (stepping motors positive temperature coefficient)
- communication fault of A/c -bus, component R22/3 Heater Booster
- R22/3, electrical fault, Heater Booster (status, current), Tämä vika on ollut jo vuosia ennen kuin ilmastointi temppuili
*:lla esilämmitin kuitenkin lähti käyntiin. Näin ainakin kuviteltiin. Ampeereja otti ja auton tyhjäkäynnistä huomasi aina kun lämmittimen laittoi päälle.
Tietokatkos tulee myös seuraavista ja ilmenee silloin kun ilmastointi sammuu ja oikkuilee (koodit tallentuvat):
Communication fault of A/C -bus
- component A32n1(Blower regulator)
- component M2/5 (left and right defrost flap actuator motor)
- component M2/16 (left and right defroster flaps actuator)
- component M2/15 (left and right footwell flaps actuator)
- component M2/6 (left blend air flap actuator)
- component M2/5 (fresh and recirculated air flap actuator motor)
- component M2/7 (right blend air flap actuator)
- component M2/22 (center vent flap positioning motor)
Eli yksi sähkövika esivastuksesta on olemassa joka tapauksessa. Oikkuilee ilmastointi tai ei. Kaikki muut viat ovat tiedonkulkukatkoksia A/C väylässä. Nämä ilmestyvät jokaisella kerralla uudestaan kun puhallin sammuu. Puhallinmoottori antoi vian ollessa päällä "invalid values" -koodia. Tämän takia vaihdoin sen uuteen - ei auttanut.
Enää ei tule muuta mieleen kuin etu-SAM...
W211 220cdi T-model vm. 2007
- tähtikuljettaja
- Mersuvelho
- Viestit: 1972
- Liittynyt: 05.11.2006 19:30
- Paikkakunta: Lounais-Suomi
Re: SISÄPUHALTIMEN / ILMASTOINNIN ONGELMA W211 -07 "Facelif
Miten se SAM vaikuttaisi asiaan jos HVAC-paneelille kuitenkin sähköt tulee koko ajan? SAM:illahan ei oikein muuta osuutta ole.
Nyppäisin sen sähköisen lämmittimen irti LIN-väylästä (ja jännitteistä). Niihin LIN-väylän laitteisiin vikakoodit viittaa. Olisi kyllä loogisempaa jos myös kovalla pakkasella kiusaa. Silloinhan korreloisi sähkölämmittimen käyttöön, sehän kytketään kun ulkona on kylmä ja moottorilta ei vielä riitä lämpöä kabiinille riittävästi. Työläämpi sitten se dealerin ehdottama kattavampi vaihtoehto testaukseen.
Nyppäisin sen sähköisen lämmittimen irti LIN-väylästä (ja jännitteistä). Niihin LIN-väylän laitteisiin vikakoodit viittaa. Olisi kyllä loogisempaa jos myös kovalla pakkasella kiusaa. Silloinhan korreloisi sähkölämmittimen käyttöön, sehän kytketään kun ulkona on kylmä ja moottorilta ei vielä riitä lämpöä kabiinille riittävästi. Työläämpi sitten se dealerin ehdottama kattavampi vaihtoehto testaukseen.
Re: SISÄPUHALTIMEN / ILMASTOINNIN ONGELMA W211 -07 "Facelif
Tuohan olisi ainakin helppo testata. Mistähän tuo pistoke löytyy? Lämmitin itse on ainakin aika paskassa paikassa...
Mitä jos tuon prefuseboxin f68:n ottaa pois. Onko siinä jotain muutakin takana kuin tuo lämmitin (R22/3)?
Mitä jos tuon prefuseboxin f68:n ottaa pois. Onko siinä jotain muutakin takana kuin tuo lämmitin (R22/3)?
W211 220cdi T-model vm. 2007
Re: SISÄPUHALTIMEN / ILMASTOINNIN ONGELMA W211 -07 "Facelif
Hyvä että tämä ketju heräsi eloon. Minulla tuo vika on edelleen, mutta näin talvella esiintyy hyvin harvoin. Käyt
nnössä vain silloin kun ulkolämpötila nousee selvästi yli nollan.
Olen siis vaihtanut lämppärin puhallinmoottorin ja samalla sen ohjain yksikön.
- kummallakaan ei ollut vaikutusta
- käyttöyksikön paneelin vaihtamisella ei myöskään mitään vaikutusta paitsi se että kylmäainekompuraa ei sillä paneelilla saanut päälle mitenkään. Se olikin espanjalaiselta romikselta tilattu ja haisi kovasti tupakille.
- lisälämmitys vastuksista minullakin on ainakin 3 elementtiä rikki. Teoria vaan niiden vaikutuksesta vähän sotii vastaan koska kylmässähän niitä vain käytetään, eikä kesällä, jolloin vika ilmenee.
Kesällä näitä lämpösäätimen ”zombi” tiloja ilmenee melkein heti liikkeelle lähdettyä ja sitten se saattaa jatkua noin 10 minuuttia, ja siinä välillä vähän aikaa käy toiminnassa, mutta sitten 10 minuutin päästä se toimii pitkään, jopa parinkin tunnin ajon ajan. Kylmää tulee ja puhaltimen säätö toimii.
nnössä vain silloin kun ulkolämpötila nousee selvästi yli nollan.
Olen siis vaihtanut lämppärin puhallinmoottorin ja samalla sen ohjain yksikön.
- kummallakaan ei ollut vaikutusta
- käyttöyksikön paneelin vaihtamisella ei myöskään mitään vaikutusta paitsi se että kylmäainekompuraa ei sillä paneelilla saanut päälle mitenkään. Se olikin espanjalaiselta romikselta tilattu ja haisi kovasti tupakille.
- lisälämmitys vastuksista minullakin on ainakin 3 elementtiä rikki. Teoria vaan niiden vaikutuksesta vähän sotii vastaan koska kylmässähän niitä vain käytetään, eikä kesällä, jolloin vika ilmenee.
Kesällä näitä lämpösäätimen ”zombi” tiloja ilmenee melkein heti liikkeelle lähdettyä ja sitten se saattaa jatkua noin 10 minuuttia, ja siinä välillä vähän aikaa käy toiminnassa, mutta sitten 10 minuutin päästä se toimii pitkään, jopa parinkin tunnin ajon ajan. Kylmää tulee ja puhaltimen säätö toimii.
Escort MK1 -71
Escort MK2 -75
Passat Farm -81
MB300D Farm -88
MB E280CDI Farm -06
Escort MK2 -75
Passat Farm -81
MB300D Farm -88
MB E280CDI Farm -06
- tähtikuljettaja
- Mersuvelho
- Viestit: 1972
- Liittynyt: 05.11.2006 19:30
- Paikkakunta: Lounais-Suomi
Re: SISÄPUHALTIMEN / ILMASTOINNIN ONGELMA W211 -07 "Facelif
Meinaatko että väylään kytketty komponentti ei voi sotkea väylää muulloin kuin "aktiivisena"? Itsellä ei ole mitään kokemusta miten nuo käytännössä oikkuilee mutta en vetäisi kovin suoria johtopäätöksiä. Dealerin aiempi ohje vaikuttaa edelleen asiallisimmalta.
Re: SISÄPUHALTIMEN / ILMASTOINNIN ONGELMA W211 -07 "Facelif
Niin, en osaa sanoa herjaako vaikka virrattomana. Todennäköisesti herjaa tulee silti...
Tämä nyt ei vaan tunnu harvinaiselta vialta. Näillä samoilla oireilla on tämän ketjun lisäksi muitakin. Luulisi, että näissä on jotain yhteistä. Jos kaikissa on sama vika, sattumanvaraisena väyläliittimen hapettumana tms., niin ihme. Ei silti, mahdollista sekin.
Yhteistä tuntuu olevan tuo rikkinäinen sähkölämmitin. Itsellä se on ollut rikki 3-4 vuotta. Ensimmäiset ilmastointihäiriöt tulivat viime syksynä.
Tämä nyt ei vaan tunnu harvinaiselta vialta. Näillä samoilla oireilla on tämän ketjun lisäksi muitakin. Luulisi, että näissä on jotain yhteistä. Jos kaikissa on sama vika, sattumanvaraisena väyläliittimen hapettumana tms., niin ihme. Ei silti, mahdollista sekin.
Yhteistä tuntuu olevan tuo rikkinäinen sähkölämmitin. Itsellä se on ollut rikki 3-4 vuotta. Ensimmäiset ilmastointihäiriöt tulivat viime syksynä.
W211 220cdi T-model vm. 2007
Re: SISÄPUHALTIMEN / ILMASTOINNIN ONGELMA W211 -07 "Facelif
Moi taas.
Irrottelin sähkö lämmitys vastuksen (R22/3) käyttösähkön sieltä apukuskin jalkatilasta olevasta liittimestä, koska mullakin oli jo 4 elementtä kahdeksasta rikki. Ei vaikutusta.
Edelleen toimii siten että kylmänä liikkeelle lähdettäessä toimii noin 10 minuuttia normaalisti, sitten menee käyttöpaneeli jumiin ja sisäilmanpuhaltimen moottori lakkaa pyörimästä. (Se on siis uusi, vaihdoin viime kesänä ja säätimen myös). Toiminnot palautuvat joskus noin minuutin jälkeen, joskus menee kauemmin, mutta ei enempää kuin 5 minuuttia. Nimittäin tuossa tilanteessa koneen lämpötila yleensä on saavuttanut normaalitilanteen (87ast) jolloin on ehkä tarvetta kuristaa jäähdytysnesteen kiertoa pienemmälle.
Minulla on sellainen käsitys, joka tukee hatarasti edellistä teoriaa, että jos heti matkaan lähdön jälkeen säätelee rullilla lämpötilaa tosi kylmälle ja tosi lämpimälle nopeasti niin KLA-jumi tulee silloin heti. Tästä päättelen että oliskohan kiertoveden sulkuventtiilin moottori (-heat exchanger shut-off motor) jumissa ja se aiheuttaisi tuon koko KLA yksikön jumi tilanteen? En ole vain löytänyt vielä kytkentäkaavioista sitä, että mikä elin huolehtii sen venttiilin moottorin liikuttelemisesta. Siellähän on DC moottori ja kierretanko tyyppinen välitys sisällä joten siellä on myös rajakytkimet, joista KLA tai SAM tietävät kummassa asennossa se on. Vai onkohan tuolle vielä oma ohjausyksikkönsä jossain? Tai sittten se on jalkatilan apukuskin N10/11 apu -SAM:n hommia. Sen kytkentäkaavio on vielä löytämättä mulla tuolta WIS:n kätköistä, mutta jatkan etsimistä, kyllä se siellä jossain on.
Oletteko te muut huomanneet tuollaista käytöstä, että nopeat lämmönvaihtelupyynnöt edesauttaisivat KLA:n jumiin menemistä?
Noita lämmityslaitteen ohjaimia on ainakin kahta tyyppiä. Uudemmassa se nestekidenäyttö ja vanhemmassa ne rengasvalot. Vaihtuneet ehkä Facelift muutoksessa 05/2006. Mulla tuo uudempi juurikin vuodelta 2006
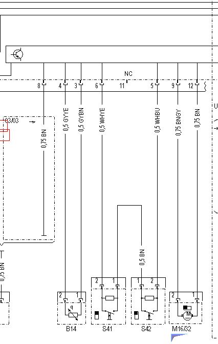
Laiton etu-SAM:n kytkentäkaaviot tuonne MEGA:n linkkiin.
Irrottelin sähkö lämmitys vastuksen (R22/3) käyttösähkön sieltä apukuskin jalkatilasta olevasta liittimestä, koska mullakin oli jo 4 elementtä kahdeksasta rikki. Ei vaikutusta.
Edelleen toimii siten että kylmänä liikkeelle lähdettäessä toimii noin 10 minuuttia normaalisti, sitten menee käyttöpaneeli jumiin ja sisäilmanpuhaltimen moottori lakkaa pyörimästä. (Se on siis uusi, vaihdoin viime kesänä ja säätimen myös). Toiminnot palautuvat joskus noin minuutin jälkeen, joskus menee kauemmin, mutta ei enempää kuin 5 minuuttia. Nimittäin tuossa tilanteessa koneen lämpötila yleensä on saavuttanut normaalitilanteen (87ast) jolloin on ehkä tarvetta kuristaa jäähdytysnesteen kiertoa pienemmälle.
Minulla on sellainen käsitys, joka tukee hatarasti edellistä teoriaa, että jos heti matkaan lähdön jälkeen säätelee rullilla lämpötilaa tosi kylmälle ja tosi lämpimälle nopeasti niin KLA-jumi tulee silloin heti. Tästä päättelen että oliskohan kiertoveden sulkuventtiilin moottori (-heat exchanger shut-off motor) jumissa ja se aiheuttaisi tuon koko KLA yksikön jumi tilanteen? En ole vain löytänyt vielä kytkentäkaavioista sitä, että mikä elin huolehtii sen venttiilin moottorin liikuttelemisesta. Siellähän on DC moottori ja kierretanko tyyppinen välitys sisällä joten siellä on myös rajakytkimet, joista KLA tai SAM tietävät kummassa asennossa se on. Vai onkohan tuolle vielä oma ohjausyksikkönsä jossain? Tai sittten se on jalkatilan apukuskin N10/11 apu -SAM:n hommia. Sen kytkentäkaavio on vielä löytämättä mulla tuolta WIS:n kätköistä, mutta jatkan etsimistä, kyllä se siellä jossain on.
Oletteko te muut huomanneet tuollaista käytöstä, että nopeat lämmönvaihtelupyynnöt edesauttaisivat KLA:n jumiin menemistä?
Noita lämmityslaitteen ohjaimia on ainakin kahta tyyppiä. Uudemmassa se nestekidenäyttö ja vanhemmassa ne rengasvalot. Vaihtuneet ehkä Facelift muutoksessa 05/2006. Mulla tuo uudempi juurikin vuodelta 2006
Laiton etu-SAM:n kytkentäkaaviot tuonne MEGA:n linkkiin.
Koodi: Valitse kaikki
https://mega.nz/folder/vsEWTJKK#iSwjGN5CtM12IkwqDwuJXQEscort MK1 -71
Escort MK2 -75
Passat Farm -81
MB300D Farm -88
MB E280CDI Farm -06
Escort MK2 -75
Passat Farm -81
MB300D Farm -88
MB E280CDI Farm -06
Re: SISÄPUHALTIMEN / ILMASTOINNIN ONGELMA W211 -07 "Facelif
Hyvä, että jaksat selvittää. Alkaa jo turhautua tähän ongelmaan. Tuo nyt poistaa ainakin R22/3:n osuuden ongelmaan. Itsellä tuo vastus on ollut pelistä pois jo vuosia, mutta ongelma on alkanut vasta viime syksynä. Siksi pidin tuota hiukan epätodennäköisenä. Suuri sähköteho päälle/pois voi aiheuttaa kaikenlaista.
Yleensä tuo jumiutuminen osuu samaan hetkeen, kun jäähd. neste saavuttaa normilämmön, eli virtausta pitäisi kuristaa. Siltä osin siis sama vika. Toisaalta, joskus tuollainen pitempi jumi on "lauennut", kun ruuvailee lämpötilaa minimiin ja maksimiin. Yhteensattumaakin voi olla...
Tuon ohjaus kiertoveden sulkuventtiilin moottorin ohjaus kyllä kiinnostaa. Ainakaan SAM:ien kautta ei ole tullut mitään vikakoodia. Luulisi, että jos ohjaus on siellä niin vikaakin tulisi. Tämän selvittäminen vaatisi aikaa ja sellaista ei oikein tunnu koskaan olevan.
Yleensä tuo jumiutuminen osuu samaan hetkeen, kun jäähd. neste saavuttaa normilämmön, eli virtausta pitäisi kuristaa. Siltä osin siis sama vika. Toisaalta, joskus tuollainen pitempi jumi on "lauennut", kun ruuvailee lämpötilaa minimiin ja maksimiin. Yhteensattumaakin voi olla...
Tuon ohjaus kiertoveden sulkuventtiilin moottorin ohjaus kyllä kiinnostaa. Ainakaan SAM:ien kautta ei ole tullut mitään vikakoodia. Luulisi, että jos ohjaus on siellä niin vikaakin tulisi. Tämän selvittäminen vaatisi aikaa ja sellaista ei oikein tunnu koskaan olevan.
W211 220cdi T-model vm. 2007
Re: SISÄPUHALTIMEN / ILMASTOINNIN ONGELMA W211 -07 "Facelif
Vesiventtiilin mennessä sopivasti oikosulkuun se rikkoo myös etuohjainlaitteen, eli sieltä jostain täytyy ohjaus tulla ?
wiimax.fi
- tähtikuljettaja
- Mersuvelho
- Viestit: 1972
- Liittynyt: 05.11.2006 19:30
- Paikkakunta: Lounais-Suomi
Re: SISÄPUHALTIMEN / ILMASTOINNIN ONGELMA W211 -07 "Facelif
Miksi siellä moottorissa pitäisi olla rajakytkimet?HannuS kirjoitti: ↑15.4.2022 14:17 xxx
Minulla on sellainen käsitys, joka tukee hatarasti edellistä teoriaa, että jos heti matkaan lähdön jälkeen säätelee rullilla lämpötilaa tosi kylmälle ja tosi lämpimälle nopeasti niin KLA-jumi tulee silloin heti. Tästä päättelen että oliskohan kiertoveden sulkuventtiilin moottori (-heat exchanger shut-off motor) jumissa ja se aiheuttaisi tuon koko KLA yksikön jumi tilanteen? En ole vain löytänyt vielä kytkentäkaavioista sitä, että mikä elin huolehtii sen venttiilin moottorin liikuttelemisesta. Siellähän on DC moottori ja kierretanko tyyppinen välitys sisällä joten siellä on myös rajakytkimet, joista KLA tai SAM tietävät kummassa asennossa se on.
Kannattaa tarkistaa SAMin lähtö, kuten dealer sanoi, noita ohjauspääteasteita poksahtelee. Ei sen takia minusta kyllä koko HVAC ohjainlaitteen pitäisi jumittaa.
Re: SISÄPUHALTIMEN / ILMASTOINNIN ONGELMA W211 -07 "Facelif
Lämmin sää vaikuttaa ongelmaan selvästi. Enää ei en saa HVAC stoppia aikaan vaikka miten säätöjä heilutan. Säätöjen toimivuus ei tosin ole ihan priimaa. Moottorin lämmön ollessa normaali, lämmön säätö maksimiin toimii hyvin ja pehmeästi. Kaikki toimii niinkuin ennenkin. Lämpötilan säätö minimiin taas ei. Säätöön tulee iso viive (luokkaa 20-30s) ja sitten kun kylmälle säätö tapahtuu, se menee yhdellä hyppäyksellä. Aivan kuin jokin jumittaisi estäen sulavan siirtymän viileän ilman puhalluksen.
Communication faultteja tulee edelleen, mutta täys jumia HVAC:iin ei tule...
Kaikki CAN hub:it mitä tuo alla olevan ohjeen perusteella löysin, kävin läpi ja putsailin. Erityisesti X30/6.
http://www.carlogic.org/bg/data/MB CAN(ICC).pdf
Eniten tuntuu vaikuttaneen säätila.
Communication faultteja tulee edelleen, mutta täys jumia HVAC:iin ei tule...
Kaikki CAN hub:it mitä tuo alla olevan ohjeen perusteella löysin, kävin läpi ja putsailin. Erityisesti X30/6.
http://www.carlogic.org/bg/data/MB CAN(ICC).pdf
Eniten tuntuu vaikuttaneen säätila.
W211 220cdi T-model vm. 2007
Re: SISÄPUHALTIMEN / ILMASTOINNIN ONGELMA W211 -07 "Facelif
Sama juttu täällä. Viileillä ilmoilla asian kans on pärjänny "ominaisuutena" mutta esim tänään aamuviileydessä +8°c puolentunnin työmatkalla hiljeni kerran ehkä minuutiks. Huomasin lähinnä näihin häiriötilanteisiin liittyvästä hajusta asian (imelähkö mieto teinipojan sukkalemun vivahde tai vihreä springles...) Mutta iltapäivällä +18°c kylmästöinti toimi oikein ekat 8 minuuttia kunnes mykisty viilennys ja hetken päästä puhaltaa vain kuumaa. Mikään säätö ei vaikuta minnekään mutta näytön tilanteet vaihtuu kuten kuuluu. Vartin paistumisen jälkeen rupes puhaltaan täysiä, ekaks hetki kuumaa ja sitten normaalisti olosuhteiden mukaan. Loppumatka 15min ilman ongelmia. Kyllähän tuo ärsyttää taas aikatavalla
LR Defender 110 STW -06
LR Series 3 109" STW -79
RR Classic 3ov 200tdi -76
Mercedes E220T CDI -08
Mercedes E290 tdt -97 "new" lintta
ex MB E200d -94
ex MB E300tdt -98
LR Series 3 109" STW -79
RR Classic 3ov 200tdi -76
Mercedes E220T CDI -08
Mercedes E290 tdt -97 "new" lintta
ex MB E200d -94
ex MB E300tdt -98